A lakberendezésben az is jó, amikor nem azt csinálhatom, amit a legjobban szeretek, illetve nem egészen úgy.
Ezalatt most azt értem, hogy ha magamnak terveznék dolgozószobát, biztosan nem a súlyos klasszikus stílust választanám, viszont meg tudom érteni azt a férfiembert, akinek ez a vágyálma. Borhűtővel, tévével, sörcsappal és humidorral, szóval minden, a gondos munkavégzéshez feltétlenül szükséges hozzávalóval... :)
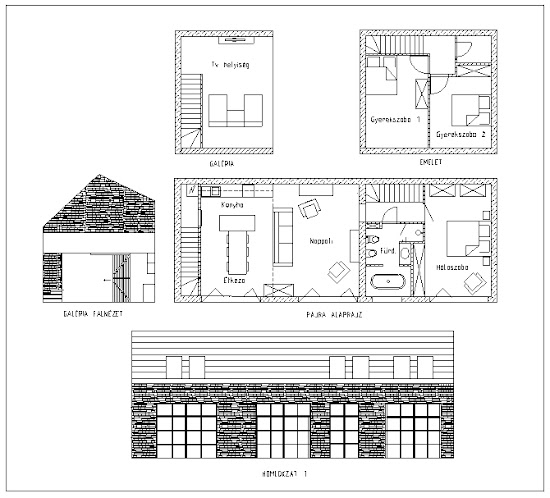
Elkészültek a tervek és falnézetek. Meg kell mondjam, rettentően élveztem a munkát!
2012. május 31., csütörtök
2012. május 30., szerda
Szépséges zuhanyzók
Tegnap, megérkezett a parkettás az építkezés helyszínére, és önkéntelenül felkiáltott, amikor meglátta az egyik fürdőszobát: "Jaj, de szép!". Hízik a májam, ennek örömére küldök néhány különleges zuhanyzót ötletgyűjtéshez.
Végezetül: a kicsi is lehet csodás!
Képek: houzz
2012. május 29., kedd
Pajta projekt: az első tervek
Amikor begolyózni készülök egy-egy terv mellett, előkapom a pajtánk rajzait és dolgozom rajtuk egy kicsit. Pihenésképpen... :)
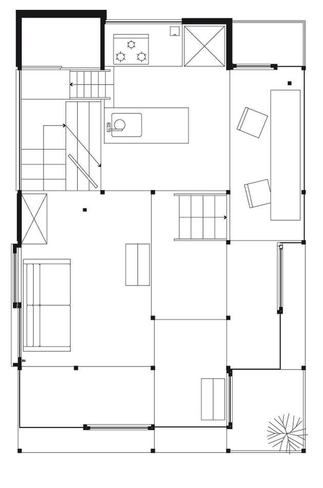
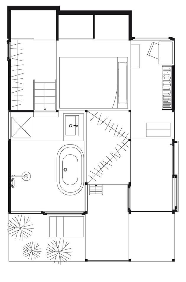
Elkészítettem egy alaprajzot, ami már tetszett annyira, hogy összerakjam a látványt is. Összehasonlításképpen mellékelem a jelenlegi helyzetet....
Itt az alaprajz is:Sok magyarázatot nem igényel, de azért néhány szóban elmondom, mire gondoltam.
A földszinten konyha-étkező-nappali-fürdő-szülői háló található, innen megközelíthető a tévénéző, olvasgató, elvonuló galéria. Az alsó szintre például nem is szeretnék tévét, csak egy hatalmas, nyílt tűzterű kandallót, olyan majd' embernagyságút, kőből. Télen, meg a hűvösebb nyári estéken, amikor teljesen összenyitjuk a házat a természettel, nagyon hangulatos lesz... A fürdőszobában is van minden, nem tudtam például lemondani a térben álló kádról, ahonnan szép kilátás nyílik majd a kertre. Ez a két kis felesleges luxus emeli majd az egyébként nagyon egyszerűre tervezett épület fényét. Na meg a mennyezetig érő üvegajtók.
Az emeleten két gyerekszoba és egy rumli helyiség található (ezt egyébként még valószínűleg áttervezem, és egy WC lesz a helyén...). Miután elsősorban nyaralóról van szó, a gyerekhálókkal nem foglalkoztam különösebben, úgyis a kertben-faluban zajlik majd az élet, elég, ha ágy és szekrény van bennük.
A lépcső alatti tér mindkét helyen jól kihasznált. A galéria alatt például kis tároló helyiség található, amit egy tolóajtónak átalakított régi pajtaajtó nyit. Ide kerül majd a mosógép és a sok háztartási kütyü (porszívó, felmosó, stb...). Az emeltre vezető lépcső alatt pedig beépített szekrények nyelik el a sok csetreszt.
Hát így állunk most. Pedig még át se vettük... :)
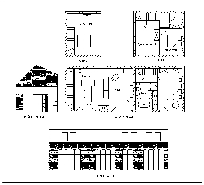
Elkészítettem egy alaprajzot, ami már tetszett annyira, hogy összerakjam a látványt is. Összehasonlításképpen mellékelem a jelenlegi helyzetet....
Itt az alaprajz is:Sok magyarázatot nem igényel, de azért néhány szóban elmondom, mire gondoltam.
A földszinten konyha-étkező-nappali-fürdő-szülői háló található, innen megközelíthető a tévénéző, olvasgató, elvonuló galéria. Az alsó szintre például nem is szeretnék tévét, csak egy hatalmas, nyílt tűzterű kandallót, olyan majd' embernagyságút, kőből. Télen, meg a hűvösebb nyári estéken, amikor teljesen összenyitjuk a házat a természettel, nagyon hangulatos lesz... A fürdőszobában is van minden, nem tudtam például lemondani a térben álló kádról, ahonnan szép kilátás nyílik majd a kertre. Ez a két kis felesleges luxus emeli majd az egyébként nagyon egyszerűre tervezett épület fényét. Na meg a mennyezetig érő üvegajtók.
Az emeleten két gyerekszoba és egy rumli helyiség található (ezt egyébként még valószínűleg áttervezem, és egy WC lesz a helyén...). Miután elsősorban nyaralóról van szó, a gyerekhálókkal nem foglalkoztam különösebben, úgyis a kertben-faluban zajlik majd az élet, elég, ha ágy és szekrény van bennük.
A lépcső alatti tér mindkét helyen jól kihasznált. A galéria alatt például kis tároló helyiség található, amit egy tolóajtónak átalakított régi pajtaajtó nyit. Ide kerül majd a mosógép és a sok háztartási kütyü (porszívó, felmosó, stb...). Az emeltre vezető lépcső alatt pedig beépített szekrények nyelik el a sok csetreszt.
Hát így állunk most. Pedig még át se vettük... :)
2012. május 28., hétfő
Pünkösd-dekor: galamb tapéta
Két évvel ezelőtti posztomban elég szimplán összeszedtem a pünkösd lényegét és mibenlétét.
Egy mondattal összefoglalva, ilyenkor a szentlélek eljövetelét ünnepeljük. Miután azt gyakran galambként ábrázolják, ezen a napon jellemzően valamilyen galambos cuccal érkezem. Mára például Aimee Wilder szerintem mókás (fóbiásoknak undorító...) tapétájával készültem. Jó pihenést!!! :)
Egy mondattal összefoglalva, ilyenkor a szentlélek eljövetelét ünnepeljük. Miután azt gyakran galambként ábrázolják, ezen a napon jellemzően valamilyen galambos cuccal érkezem. Mára például Aimee Wilder szerintem mókás (fóbiásoknak undorító...) tapétájával készültem. Jó pihenést!!! :)
2012. május 26., szombat
2012. május 25., péntek
Néhány szép dolog a Balaton-felvidékről
Múlt hétvégén a Balaton-felvidéken jártunk, ahol a telefonommal fotóztam párat. Olyan dolgokat, amik a pajta-projekttel kapcsolatban érdekesek lehetnek nekünk. Így került képbe sok-sok (majdnem) száraz rakású kőfal. Például az örvényesi Árpád-kori templomrom oromfala.
És a mellette található vízimalomé. Vagy az autóból fotózott sima kőkerítés. Nekem is kell majd ilyen! :)Délután pedig betértünk egy késői ebédre a köveskáli Kővirág étterembe. Isteni finomat ettünk mesés környezetben, tündéri kiszolgálással. Nagyon ajánlom!!! :)Kő kő hátán. A Balaton-felvidék új mániám lett...:)
2012. május 24., csütörtök
Munkaközi fotó: kandalló és konyha
Egy csodálatos újlipótvárosi nagypolgári lakás felújításában vehetek részt mostanában.
A nappaliban egy kémény és fal közötti egy elég stílusidegen (egyébként nagyon szépen kivitelezett) szekrénybeépítést hagytak ránk a korábbi tulajdonosok, amit közös akarattal felszámoltunk. A megrendelő régi álma volt egy kandalló, amely sajnos itt se valósulhatott meg maradéktalanul, ugyanis a képen látható kémény sajnos nem a miénk, a költségek viszonylag alacsonyan tartása miatt pedig nem terveztünk behúzni újat. Így mérlegelve a lehetőségeket és kívánalmakat, végül egy bioetanol kandalló beépítése mellett döntöttünk. Ennek a gipszkarton váza látható a képen. A korábbi állapot:Ebbe a lakásba érkezik a korábban már posztolt patchwork cementlap. Egy délelőtti fáradtságos munkával kiraktam a padlóra a pontos sorrendet, amelyet a burkolók tegnap felragasztottak.Hát így állunk egyelőre. Izgalmas dolog ez, pláne, hogy ennyire gyönyörű a lakás!
A nappaliban egy kémény és fal közötti egy elég stílusidegen (egyébként nagyon szépen kivitelezett) szekrénybeépítést hagytak ránk a korábbi tulajdonosok, amit közös akarattal felszámoltunk. A megrendelő régi álma volt egy kandalló, amely sajnos itt se valósulhatott meg maradéktalanul, ugyanis a képen látható kémény sajnos nem a miénk, a költségek viszonylag alacsonyan tartása miatt pedig nem terveztünk behúzni újat. Így mérlegelve a lehetőségeket és kívánalmakat, végül egy bioetanol kandalló beépítése mellett döntöttünk. Ennek a gipszkarton váza látható a képen. A korábbi állapot:Ebbe a lakásba érkezik a korábban már posztolt patchwork cementlap. Egy délelőtti fáradtságos munkával kiraktam a padlóra a pontos sorrendet, amelyet a burkolók tegnap felragasztottak.Hát így állunk egyelőre. Izgalmas dolog ez, pláne, hogy ennyire gyönyörű a lakás!
2012. május 23., szerda
Svéd pajta fával
Tudjátok, a pajták, vagy pajta jellegű épületek szívem csücskei, mióta megvan a saját kis romunk, azóta pláne nyitott szemmel járok a témában... Bár ez a svéd épület nincsen még berendezve, eddig nagyon közel áll a szívemhez, és ha nem nyaralónak szánnánk a sajátunkat, biztosan hasonló irányba indulnék én is.
A megvalósítás ugyan még odébb van, a bőrömből kibújni nem tudok, szóval készítettem már terveket a saját pajtánkra is... :) Bár a stílust jóval rusztikusabbra szánom - sok hasonlóság lesz ezzel a házzal. Én is galéria alá passzintom be a konyhát, nálunk is szekrénynek lesz beépítve az egyik lépcső alatti tér, és lesznek fehér falak.
Nálunk - a tervek jelen állása szerint legalábbis - nem ilyen lesz a fürdőszoba, de azért vessetek egy pillantást arra a nem annyira ritka, de állati klassz megoldásra, amikor a zuhanyfülkébe két oldalról lehet belépni, az előtétfalon pedig ott figyel a mosdó. Nagyon menő a kád melletti fa beépítés is, ami a mosdószekrény formájára reflektál.
Forrás: arch daily
A megvalósítás ugyan még odébb van, a bőrömből kibújni nem tudok, szóval készítettem már terveket a saját pajtánkra is... :) Bár a stílust jóval rusztikusabbra szánom - sok hasonlóság lesz ezzel a házzal. Én is galéria alá passzintom be a konyhát, nálunk is szekrénynek lesz beépítve az egyik lépcső alatti tér, és lesznek fehér falak.
Nálunk - a tervek jelen állása szerint legalábbis - nem ilyen lesz a fürdőszoba, de azért vessetek egy pillantást arra a nem annyira ritka, de állati klassz megoldásra, amikor a zuhanyfülkébe két oldalról lehet belépni, az előtétfalon pedig ott figyel a mosdó. Nagyon menő a kád melletti fa beépítés is, ami a mosdószekrény formájára reflektál.
Forrás: arch daily
Címkék:
Lakások/házak,
PAJTA-projekt
2012. május 22., kedd
Serpentine: kukac-szék a Ligne Roset-nál
Újdonság a Lignet Rose-nál Eléonore Nalet tavalyi kölni kiállításon bemutatkozott Serpentine széke.
"A Serpentine arra készült, hogy egész évben kint ülhessünk a szabadban. Finom fémszerkezete a téli vegetációra emlékeztet, és amikor visszatér a nyár, a Serpentine háttámláját és karfáját megtámogató hosszú, színes párnákat ölt. Az alul futó fémszerkezet még éppen megpillantható, de a testeddel már nem érintkezik: a hullámzás hívogatóan kényelmes és különleges kárpitozást ad." /www.eleonornalet.com/
Forrás: dezeen és Eléonore Nalet
"A Serpentine arra készült, hogy egész évben kint ülhessünk a szabadban. Finom fémszerkezete a téli vegetációra emlékeztet, és amikor visszatér a nyár, a Serpentine háttámláját és karfáját megtámogató hosszú, színes párnákat ölt. Az alul futó fémszerkezet még éppen megpillantható, de a testeddel már nem érintkezik: a hullámzás hívogatóan kényelmes és különleges kárpitozást ad." /www.eleonornalet.com/
Forrás: dezeen és Eléonore Nalet
2012. május 21., hétfő
Póklámpa minden enteriőrbe
Aletta küldte nekem a fenti képet, köszönöm neki, és gyorsan meg is osztom Veletek.
Öröm nekem ilyen klasszikus változatot is látni, mert igazság szerint eddig csak modern enteriőrbe való darabokat ismertem, ezek közül is kedvencem az Octopus:
De szeretem a dear ingo-t is, amelyről a saját tervezésű póklámpámat is mintáztam:Képek: 1 via Aletta, 2, 3
Öröm nekem ilyen klasszikus változatot is látni, mert igazság szerint eddig csak modern enteriőrbe való darabokat ismertem, ezek közül is kedvencem az Octopus:
De szeretem a dear ingo-t is, amelyről a saját tervezésű póklámpámat is mintáztam:Képek: 1 via Aletta, 2, 3
2012. május 19., szombat
Hétvégi matiné
Mátyás Tokióban, egy Sou Fujimoto házban tölti a hétvégét. Megnézi, milyen kirakatban lakni... :)
Egy kis videó a ház működéséről:
Forrás: Afasia
Egy kis videó a ház működéséről:
Forrás: Afasia
Címkék:
Hétvégi matiné,
Lakások/házak
Feliratkozás:
Bejegyzések (Atom)
© Térkultúra by Petra Nikoletti. All rights reserved.

























































