Mátyás Amerikában. Azért a pajta projektet ő se tudja elereszteni...
Forrás: ideas for houses
2012. március 31., szombat
2012. március 30., péntek
B E T Ű bögre... :)
Nálam kütyü ügyben az a helyzet, hogy sok kedves ismerős gondolja, mondja, "jaj, Petra lakberendező, biztos örül valami szép tárgynak..." :) Hiába hangoztatom, hogy pont a szakmám (vagyis mániám) miatt már túlzsúfolt a készlet, mégis bekeveredik egy-egy "humoros", vagy "szuper-cuki" bögre a háztartásba, hogy aztán folyamatos terveket szőhessek a leépítésükről, időnként cselekedve (egy dobozban a kuka mellé helyezve az egyébként tökéletes állapotú darabokat). Lényeg, a lényeg, szerintem mindnyájan hasonlóképpen vagyunk ezzel: túl sok a bögre, kevés a hely...
De, ha ma kéne vadi-új háztartást indítanom, nem hagynám ki a betű-bögre gegjét. Mert még a rohadt unalmas mosogatógép kipakolás is vicces lesz, ha azzal molyolok, hogy a SZIA, vagy a SZAR betűk nézzenek vissza rám a szekrényből... :)Egyébként valószínűleg irodában van igazán létjogosultsága, ahol jó sok betűt fel lehet halmozni.Forrás: dornob
De, ha ma kéne vadi-új háztartást indítanom, nem hagynám ki a betű-bögre gegjét. Mert még a rohadt unalmas mosogatógép kipakolás is vicces lesz, ha azzal molyolok, hogy a SZIA, vagy a SZAR betűk nézzenek vissza rám a szekrényből... :)Egyébként valószínűleg irodában van igazán létjogosultsága, ahol jó sok betűt fel lehet halmozni.Forrás: dornob
2012. március 29., csütörtök
Verzelloni Noe - az új lámúr... :)
Akárhogy próbálkozom, nem fog bepasszolni az éppen készülő lakásba, pedig teljes szerelembe estem ezzel a kanapéval... Forgalmazza a PointZero.
Bidet kéne, de nincsen hely...
Éppen ilyen szituációban vagyok... És mekkora örömmel találtam rá a Duravit Sensowash C Bidet-WC kombinációra! Az eddigi elszomorító, bumfordi társak között, végre egy csinos megoldás, persze nem csoda: Starck tervezte. Első hallásra ugyancsak nem olcsó, kábé 400.000 Ft (a WC és az ülőke együtt), mielőtt padlót fogunk, azért érdemes "alternatív költséget" számolni... Magas kategóriás termékekkel számolva (mégis csak Starck...), ez alakuljon a következőképpen: WC 100.000 Ft, Bidet 100.000 Ft, lecsapódásgátló deszka 40.000 Ft, bidet csaptelep (Axor Starck) 95.000 Ft. Összesen 335.000 Ft.
Azaz, kevesebb, mint 20% felárat kell fizetnünk a kreatív kényszermegoldásért.
Cserébe nézzük, mit tud, mert az nagyon vicces... :) Tisztára, mint egy luxusautó!
Zajmentes lecsukódás valamint a wc-ülőke és fedél elektronikus működtetése
Éjszakai fény: megvilágított kagylóbelső
Integrált ülőkefűtés
Gyerekzár
Ülepzuhany
Meleglevegő - Szárítás
Hölgyzuhany
Komfortzuhany
Felhasználói profil tárolása
Víznyomás és hőmérséklet szabályozása
Individuális szárítási, ülőke- és vízhőmérséklet
Zuhanyrúd individuális pozícionálása
A zuhanyrúd felülete higiénikus nemesacél, amely minden használat előtt és után automatikusan tisztítja magát
A komfort zuhany esetében választható alternatívaként pulzáló vízsugár is.
Ilyen szép kezelőfelülete van:
Azért jót röhögtünk tegnap Anettel (aki az Aqua Saniternél segít nekem rendszeresen fürdőszoba ügyben), hogy milyen lázba jövünk egy - mondjuk ki bátran - seggmosó terméktől... :) Aki viszont ismeri a korábbi meglehetősen ronda megoldásokat, megérti a lelkesedésünket.
Azért azok számára is van egy jó hírem, akik nem engedhetik meg maguknak a prémium kategóriás szanitereket/csaptelepeket, vagy egyszerűen túlzásnak érzik, ha éjszaka világít a vécékagylójuk belseje... Találtam egy elfogadható dizájnt a mechanikus kombibidék világában, úgy hívják, hogy Toilette Nett, és az Interex Kft. forgalmazza. Itt most kizárólag a deszkáról beszélünk, ami a legtöbb vécével kompatibilis. Az ára 50-60.000 Ft körül mozog, és szerintem azért megnyerő, mert a lehető legdiszkrétebben, a WC mögött vezeti el a vizet a csaptelephez.
Ha pedig kicsit több a hely, bár két szaniter már nem férne el egymás mellett, oda tök jó lehet egy korábban már posztolt Ideal Standard WC-bidet sziámi iker, a 'Small +' Twin.
Azaz, kevesebb, mint 20% felárat kell fizetnünk a kreatív kényszermegoldásért.
Cserébe nézzük, mit tud, mert az nagyon vicces... :) Tisztára, mint egy luxusautó!
Zajmentes lecsukódás valamint a wc-ülőke és fedél elektronikus működtetése
Éjszakai fény: megvilágított kagylóbelső
Integrált ülőkefűtés
Gyerekzár
Ülepzuhany
Meleglevegő - Szárítás
Hölgyzuhany
Komfortzuhany
Felhasználói profil tárolása
Víznyomás és hőmérséklet szabályozása
Individuális szárítási, ülőke- és vízhőmérséklet
Zuhanyrúd individuális pozícionálása
A zuhanyrúd felülete higiénikus nemesacél, amely minden használat előtt és után automatikusan tisztítja magát
A komfort zuhany esetében választható alternatívaként pulzáló vízsugár is.
Ilyen szép kezelőfelülete van:
Azért jót röhögtünk tegnap Anettel (aki az Aqua Saniternél segít nekem rendszeresen fürdőszoba ügyben), hogy milyen lázba jövünk egy - mondjuk ki bátran - seggmosó terméktől... :) Aki viszont ismeri a korábbi meglehetősen ronda megoldásokat, megérti a lelkesedésünket.
Azért azok számára is van egy jó hírem, akik nem engedhetik meg maguknak a prémium kategóriás szanitereket/csaptelepeket, vagy egyszerűen túlzásnak érzik, ha éjszaka világít a vécékagylójuk belseje... Találtam egy elfogadható dizájnt a mechanikus kombibidék világában, úgy hívják, hogy Toilette Nett, és az Interex Kft. forgalmazza. Itt most kizárólag a deszkáról beszélünk, ami a legtöbb vécével kompatibilis. Az ára 50-60.000 Ft körül mozog, és szerintem azért megnyerő, mert a lehető legdiszkrétebben, a WC mögött vezeti el a vizet a csaptelephez.
Ha pedig kicsit több a hely, bár két szaniter már nem férne el egymás mellett, oda tök jó lehet egy korábban már posztolt Ideal Standard WC-bidet sziámi iker, a 'Small +' Twin.
2012. március 28., szerda
Elöl régi - hátul új
A szokatlan szürke szín azért már jelzi a turpiszságot ezen a kétes környéken felújított tipikus belga sorházon... A modern attitűdöt elutasító látogató is elalél azonban, hiszen első lépései a nemes anyagokkal és finom ízléssel gyakorlatilag újjávarázsolt klasszikus enteriőrbe vezetik.
A konyha tájékán indul a meglepi...
A klasszikus formavilágú lépcsőkorlát hozza össze a régi világot az újjal.
Felül azonban már ez is üvegre vált.
És "tombol" a puritanizmus... (Ez most vagy egy jól álcázott műtárgy, vagy az amire gondolok - és ami most is itt van alattam - egy ülőlabda. Gerincműtött/műtendő sorstársaimnak üzenem, ennél jobb gyógyír nincs is!)
A tökéletes minimalizmus. Itt aztán egy felesleges kis részletet se találunk. Ezt a bátor sterilitást a magam környezetében túlzásnak érezném, de kívülállóként nagyon tudom értékelni.
A terasz viszont a barátságos modern irányvonalat képviseli. Ennyit tesz a fapadló.
Lejárat a kis kertbe.
Hátulról meg tök modern...
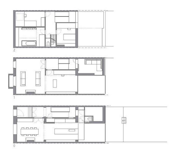
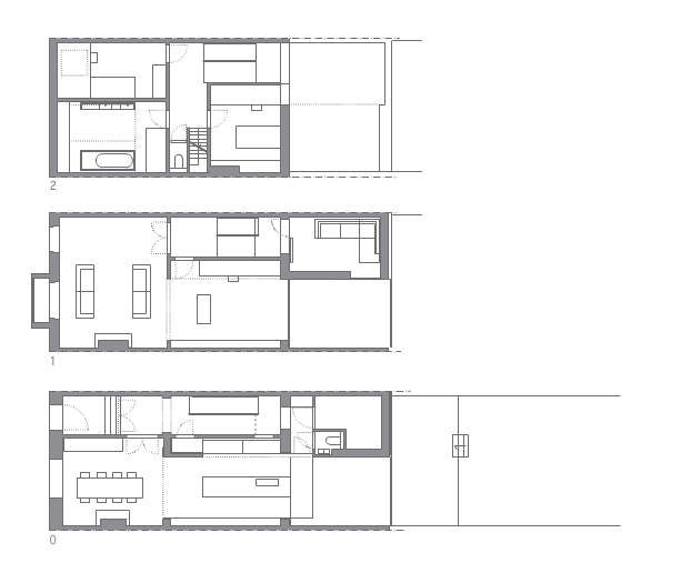
Az alaprajzok, egy metszet és a homlokzati tervek is megvannak!
Elegáns, mégis könnyed városi kis házikó lett ez, amit bármikor elfogadnék!
Forrás: desire to inspire
A konyha tájékán indul a meglepi...
A klasszikus formavilágú lépcsőkorlát hozza össze a régi világot az újjal.
Felül azonban már ez is üvegre vált.
És "tombol" a puritanizmus... (Ez most vagy egy jól álcázott műtárgy, vagy az amire gondolok - és ami most is itt van alattam - egy ülőlabda. Gerincműtött/műtendő sorstársaimnak üzenem, ennél jobb gyógyír nincs is!)
A tökéletes minimalizmus. Itt aztán egy felesleges kis részletet se találunk. Ezt a bátor sterilitást a magam környezetében túlzásnak érezném, de kívülállóként nagyon tudom értékelni.
A terasz viszont a barátságos modern irányvonalat képviseli. Ennyit tesz a fapadló.
Lejárat a kis kertbe.
Hátulról meg tök modern...
Az alaprajzok, egy metszet és a homlokzati tervek is megvannak!
Elegáns, mégis könnyed városi kis házikó lett ez, amit bármikor elfogadnék!
Forrás: desire to inspire
2012. március 27., kedd
Vintázs hangulat tapétával
Jó hír, hogy az angol Rocket St George egész Európába szállítja kiváló portékáit, így 15 font szállítási költségért már hozzánk is eljuthat a tapétába bújt vintázs sikk...Még az ajtó-panelek is...Innen megrendelhető egyébként a korábban bemutatott könyvespolc tapéta is, és még rengeteg jópofa falravaló.
2012. március 26., hétfő
Milyen házat építenél Balaton-felvidéken?
Tegnap Balaton-felvidéken kocsikáztunk a szokásos nyaralónézegető ügyben. A gyönyörűen felújított, mára minden szempontból luxusháznak nevezhető épületek mellett megbúvik még néhány lepukkant, unalmasabb darab (a válságnak köszönhetően nem is rossz áron...), amelyek kreatív gazdáért kiáltanak. Ez volnék én. :)
Szóval most a gép előtt ülök, és a táj hagyományos építészetéről keresek anyagot, miközben az autentik nádtetős megoldások mellett nekem nagyon tetsző újító megoldásokba is beleszaladtam. Így kerültem a SAGRA Architects oldalára, ahol nagyon megfogott ennek a kevéssé szexi, de sokat ígérő parasztháznak a XXI. századira formált látványterve. Mit gondoltok? :)
2012. március 24., szombat
Feliratkozás:
Bejegyzések (Atom)
© Térkultúra by Petra Nikoletti. All rights reserved.




















































