2015. október 30., péntek
2015. október 29., csütörtök
Wc kimaxolva…
Nem is olyan rég írtam, hogy szerintem a WC a lakás méltatlanul elhanyagolt része… Pedig gyakorló, gyermekes anyukák tudják, hogy ez az a hely, ahol jól esik elbújni időnként, máshol úgysem lehet. :)
Hát itt biztos elolvasgatnék!
Forrás: homeadore
Hát itt biztos elolvasgatnék!
Forrás: homeadore
2015. október 28., szerda
Alakul...
A fotók alapján hihetetlen, de jövő héten nyit a szuper-titkos projektünk! Ülni mindenesetre már lesz mire. Megkérkeztek az emeco navy chairek. És mert az egész hely koncepciója az újrahasznosítás, meg a környezetvédelem: EBBEN A SZÉKBEN 111 PET PALACK TALÁLHATÓ… Nem, nem tudom, hogy fél, vagy két literesek-e, de mindenképpen impresszív, nem? :)
Egy ilyen eco helyről nem hiányozhatnak a zöldek sem… A fák a WC-ben várják sorsuk jobbra fordulását.
Hamarosan érkezem a részletekkel, és a kész szép képekkel. De ide majd Ti is ellátogathattok ám!!!! :)
Egy ilyen eco helyről nem hiányozhatnak a zöldek sem… A fák a WC-ben várják sorsuk jobbra fordulását.
Hamarosan érkezem a részletekkel, és a kész szép képekkel. De ide majd Ti is ellátogathattok ám!!!! :)
2015. október 27., kedd
Hálószoba sok fával
Modern és rusztikus hálószobának is nagyon jól áll a fejvég falán teljes egészében felvitt faburkolat. Nagyon egyszerűen, akár házilag is kivetelezhető dologról van szó, egy apróságra viszont érdemes odafigyelni: itt is muszáj lesz dilatációs hézagot hagyni (min 1-1 cm körben), mint a parkettáknál, hogy a fa tágulása ne okozza a burkolat felpuposodását. Ha gipszkartonnal falazunk, akkor ezt könnyen eltakarjhatjuk, egyszerűen finoman ráengedjük a karton táblát, így nem látszik a hézag, bár a "falon belül" azért ott van…
Iitt (KLIKK) is egy remek leírás a házi kivitelezésről, de vigyázz, ő sem számol a tágulással, márpedig azt Magyarországon muszáj figyelembe venni!
Képek: houzz és magans lens
2015. október 26., hétfő
Szenzációs renoválás...
Nagyon sok olyan modernista épület található Magyarországon, amelyet lemondóan legyintve szocreálnak bélyegeznek (egyébként teljesen tévesen…), és még ha meg is kímélik őket, jobb esetben is "modernizáló" átalakításnak vetik alá… Ilyenkor összeszorul a szívem.
Na de most hozzunk egy szép példát az ellenkezőjére is, bár sajnos nem itthonról…
Robin Boyd 1954-ben elkészült lakóépülete, a Bridge House (amely tényleg egy patakon átívelő acélvázas híd) 60 évvel később a régi struktúrát maximálisan figyelembevevő felújítást kapott. WOW…
Forrás: style files
Na de most hozzunk egy szép példát az ellenkezőjére is, bár sajnos nem itthonról…
Robin Boyd 1954-ben elkészült lakóépülete, a Bridge House (amely tényleg egy patakon átívelő acélvázas híd) 60 évvel később a régi struktúrát maximálisan figyelembevevő felújítást kapott. WOW…
Forrás: style files
2015. október 22., csütörtök
Az új szappantartónk...
Minden utazásról hozok valamit a lakásba… Szeretem, ha a hétköznapi őrületben vannak körülöttem olyan tárgyak, amik a vidám, nyugisabb napokra emlékeztetnek.
Most Londonban töltöttünk pár napot, és ezt a vicces szappantartót hoztam magammal. Ha arra jártok, ne hagyjatok ki náhány vidám percet a Tigerben… :)
Most Londonban töltöttünk pár napot, és ezt a vicces szappantartót hoztam magammal. Ha arra jártok, ne hagyjatok ki náhány vidám percet a Tigerben… :)
2015. október 21., szerda
2015. október 20., kedd
2015. október 19., hétfő
Dzsungelesedik a WC...
Nekem a WC a nyugalom szigete otthon… Nem tudom, mennyire illik erről beszélni, de én imádok egy magazin, vagy pletykalap társaságában hosszan bezárkózni, és végre teljesen magamban eltölteni egy kis időt. Gyakori tervezési hiba, ha a lakberendező abból indul ki, neki mi a jó, mert az legritkább esetben fedi le a megrendelő igényet, a WC esetében viszont nem vagyok hajlandó alább adni. Általában dögös mellékhelyiségeket tervezek, mégha ez nem is különösebb igény, és a visszajelzések engem igazolnak...
2015. október 16., péntek
2015. október 14., szerda
Készül a saját gyártású kerek tükrünk...
Lassan legyártatjuk egyedi kerek tükrünket… Mert ez most nagy divat, így természetesen nekünk is kedvencünk! :)
Képek: itt, itt, itt és itt
2015. október 13., kedd
A mai nap (közel sem teljes) krónikája...
Szép lassan leszedjük a fóliákat, hamarosan takarítunk, és indul a bútorozás a vár tövében található lakásban…
Helyére került a saját tervezésű csillárom (fent), és egy antik darab is (lent).
Az előszoba már csak dekorációért kiált… :)
A bejárat melletti fém beépített tolóajtó egyedi terveim alapján készült és a konyha-étkező elválasztóablakára rímel.
Végül pedig egy kis műhelytitok: mini ropiperecekkel teszteltük az össze-vissza belógó villanykörték magasságait… :)
2015. október 12., hétfő
Még mindig hajtásban...
Kiválasztottuk a színt, megtörtént a festés, de még holnap meglátjuk…
Ma kaptam ezt a fényképet a megrendelőtől, hogy aggódik, nem túl világos-e a kékünk. Szerintem ezen a fotón pont tökéletes. Azt mondja, élőben másképp hat, úgyhogy holnap reggel ott kezdek, hogy megszakértsem a problémát. :)
Addig még meg kéne terveznem egy kis kávézót...
Ma kaptam ezt a fényképet a megrendelőtől, hogy aggódik, nem túl világos-e a kékünk. Szerintem ezen a fotón pont tökéletes. Azt mondja, élőben másképp hat, úgyhogy holnap reggel ott kezdek, hogy megszakértsem a problémát. :)
Addig még meg kéne terveznem egy kis kávézót...
2015. október 9., péntek
Sputnik lámpát a netről!
Sokan kérdeztétek, hogy honnan érkezett meg a szputnyik csillárunk… A szállító pontos elérhetőségét inkább nem adom meg. A lámpa egyébként hibátlan (mit hibátlan… gyönyörű!) és két héten belül megérkezett Indiából, de a megrendelésben túl sok mindnet félrenéztek (a már említett európai sztenderden kívül nem érkezett meg például a rúdhosszabbító elem, amit külön kértunk).
Szóval, ha szeretnétek ilyet, akkor írjátok be az ebay.com keresőjébe, hogy "sputnik chandeliar india" (ITT), és annyi lámpát kiad, hogy biztos találtok megfelelőt.
Figyeljetek, hogy az eladónak sok akciója legyen, és csupa pozitív visszajelzése. Akkor remélhetőleg nem lesz gond.
Ráadásul a legtöbb cég ingyen szállít… Előfordulhat viszont, hogy a posta elkapja a küldeményt, akkor vámot kell fizetni rá.
Nem csak a klasszikus formát szeretem, hanem az extrásítottakat is, a csatolt képeken láttok néhányat. Megtalálni króm és fekete színben is őket.
Jó böngészést!
2015. október 8., csütörtök
Készül a márványtömb pult...
A napokban iszonyú hajtásban vagyok… Végét járják az építkezések, egyikről a másikra rohanok, mindig van még valami elintézni és javítani való…
A nemsokára nyitó Magnet bankfiók és kávézóba például márványtömb pultot terveztem, amihez most egy erősebb erezésű carrara márványt választottam.
A nemsokára nyitó Magnet bankfiók és kávézóba például márványtömb pultot terveztem, amihez most egy erősebb erezésű carrara márványt választottam.
2015. október 7., szerda
Tegnapi napom….
Tegnap lámpákat szereltünk az egyik kedvenc lakásomban (iszonyú szerencsés vagyok mostanság, mert van ilyenből több is, és mind más-más stílus…:)). Miután kicsomagoltuk az Indiából érkezett csoda sputnik csillárt és felraktuk a helyére, és hoztam bele E14-es izzót (hiszen azzal rendeltük), jött a feketeleves… Az egész rendelés félrement, és E12-vel szállították. ÁÁÁÁ. Ez egy amerikai izzó szabvány… Gondoltam, franc bele, rendelek izzót is. De akkor eszembe jutott, hogy ezek 110V-ra lesznek "kiképezve", szóval csillár mehet vissza. Bakker. Pedig annyira szép. Ez a veszély abban, ha ebay-en rendelünk Indiából, bár az az igazság, hogy eddig soha semmilyen probléma nem volt.
A többi viszont jól alakult, és minden gyönyörű. Ízelítőnek ez a szuper-rumlis rettenetesen rossz kép. Nem sokára berendezetten jelentkezem a Vár tövéből…
2015. október 6., kedd
2015. október 5., hétfő
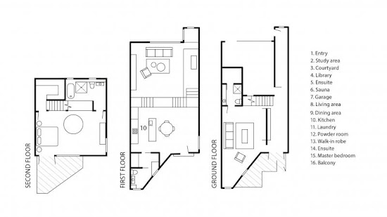
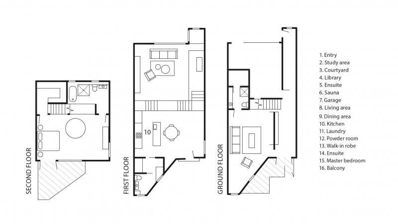
Egy pasis ház
Sajnos csak a fotóit találtam meg ennek a klassz háznak, nincsen hozzá semmilyen plusz információm, mégis biztos vagyok benne, hogy itt férfi lakik. Igaz, hogy én szeretem a színeket, de azt is el kell ismernem, hogy a szürke-fekete-fehér egy nagyon megnyugtató kombináció, én ridegnek se tartom, pláne, ha ennyi növényt párosítanak hozzá.
Tetszik a legújabb, és a korábbi designer darabok találkozása, minden annyira finoman, és tökéletes kombinációban van jelen, hogy egyáltalán nem tűnik hivalkodó kiállításnak.
Forrás: homelife.com.au
Feliratkozás:
Bejegyzések (Atom)
© Térkultúra by Petra Nikoletti. All rights reserved.























































